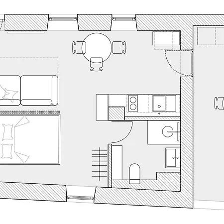
Apartmaji Robida
معرض الصور
Preview only — see all hotel photos
See all 52 photos 1 /
52
9.9
27 تعليق
Best options for your travel dates
عرض الفندق على الخريطة
Apartmaji Robida
من الأماكن الشهيرة في المنطقة نادي الغولف ليبيكا على بعد 4 كم.
تشتمل معالم الجذب الشهيرة القريبة على Chiesa Serbo Ortodossa di San Spiridione، على بُعد 15 دقيقة بالسيارة. يمكن الوصول إلى وسط Sežana في غضون 20 دقيقة سيرًا على الأقدام.
بالإضافة إلى ذلك، ستجد مجفف الشعر وملاءات الحمام والمناشف.
مطار ليوبليانا يوجي بوتشنيك يقع على بعد 110 كم من هنا. كما يضمن وجود المسبح الخصوصي إقامة مريحة.
المزيد +
أقل -
رجاء الانتظار، نحن نتحقق لك من الغرف المتوفرة
البحث عن الفنادق
المرافق
المميزات الرئيسية
- واي فاي
- موقف سيارات
- مسبح
- مكيف الهواء
- الحيوانات الأليفة ممنوعة
مرافق الفندق
المعلومات العامة:
- ممنوع التدخين في كل الأماكن
- واي فاي
- موقف السيارات
- غير مسموح بالحيوانات الأليفة
الأنشطة الرياضية والترفيهية:
- حوض الغطس
- مسبح خارجي موسمي
- كراسي للتشمس
- حديقة
- حوض السباحة مع اطلالة
الخدمات:
- خدمة صف السيارات
مرافق الغرفة:
- تكيف
- تدفئة
- شرفة
السياسات
تسجيل الوصول: من 16:00 حتى 18:00
تسجيل المغادرة: من 09:00 حتى 10:00
خريطة
المعالم السياحية المحلية
المطارات
- مطار ليوبليانا يوجي بوتشنيك (106 كم)
التعليقات
اكتب تعليق
تعليقات تم التأكد منها 100%
9.9 /10